5 locali in vendita

Capaci, Via Piemonte
€ 163.000
5 locali 5 locali
207 Mq 207 Mq
2 bagni 2 bagni

5 locali in vendita

Capaci, Via Piemonte

Descrizione annuncio

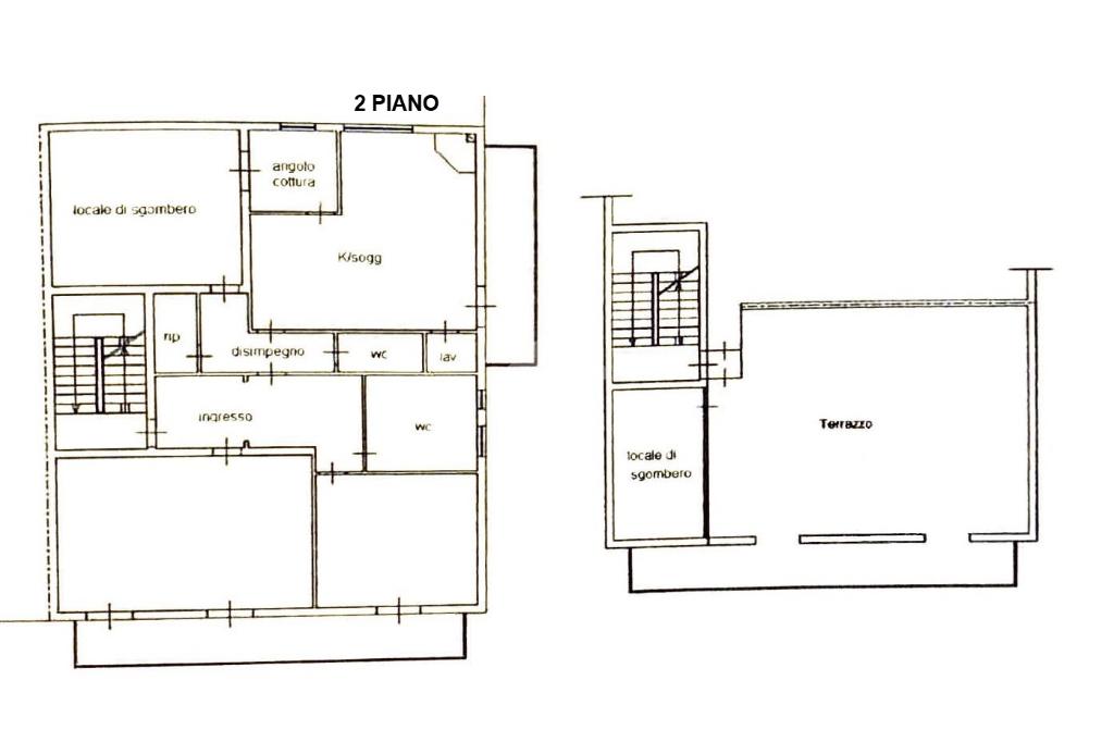
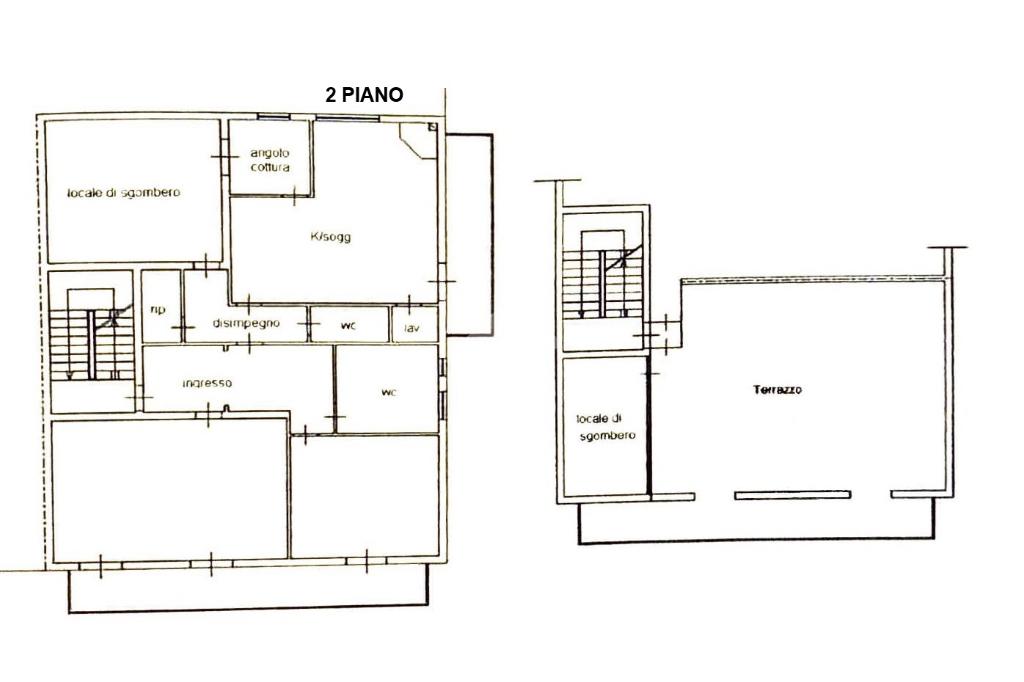
Nel comune di Capaci, proponiamo in vendita un ampio appartamento di 207 mq situato al piano secondo senza ascensore.

L'immobile offre una disposizione spaziosa e funzionale, ideale per chi cerca comfort e praticità.

All'interno, troverete cinque locali ben distribuiti, tra cui due camere da letto luminose e due ulteriori stanze.

La zona giorno si apre su due balconi, perfetti per momenti di relax all'aperto, mentre un terrazzo aggiuntivo al piano superiore, grande quanto l'intera abitazione, offre uno spazio esterno privato.

Completano la proprietà due bagni e una lavanderia, garantendo comodità per tutta la famiglia.

La posizione strategica consente di raggiungere facilmente i principali servizi e le vie di comunicazione, rendendo questa soluzione abitativa adatta a diverse esigenze.

Mostra tutto

Nelle vicinanze

Trasporto pubblico Trasporto pubblico
Isola delle Femmine
Isola delle Femmine
2,5 Km
Trasporto pubblico
80 m
Capaci-Kennedy
Capaci-Kennedy
460 m
Carini Torre Ciachea
Carini Torre Ciachea
2,4 Km
Farmacia Farmacia
Farmacia Kennedy
640 m
Parafarmacia Poseidon
2,1 Km
Supermercati Supermercati
Auchan
2,0 Km
Eurospin
2,4 Km
Mercatone Uno
2,6 Km
Lidl
2,9 Km
Negozi Negozi
OBJ
1,9 Km
Niceta Store
1,9 Km
Original Marines
1,9 Km
Esprit
1,9 Km
Lo By Lovable
1,9 Km
Bar Bar
Johnnie Walker
2,3 Km
Ristoranti Ristoranti
Fratelli La Bufala
2,0 Km
La Faccia DI Vecchia
2,6 Km
Pizzeria Al Sorriso
2,8 Km
Carlo Magno
2,8 Km
Godiva
2,9 Km
Mostra tutto

Caratteristiche

Rif.:
61121556
Piano:
2 di 3 (Piano basso)
Balconi:
2
Terrazzi:
1
Camere da letto:
3
Arredamento:
Assente
Mostra tutto
Prezzo Prezzo
€ 163.000
Rata mutuo Rata mutuo
€ 777 / mese
Proponi il tuo prezzoProponi il tuo prezzo

Classe Energetica

G
G
G
G
G
G
G
G
G
EP globale non rinnovabile:
175.90 kW h/m² anno
EP globale rinnovabile:
175.90 kW h/m² anno
EP invernale del fabbricato:
EP estiva del fabbricato:
Anno di costruzione:
1970
Riscaldamento:
Assente

Ti interessa visionare l'immobile?

Fissa un appuntamento  Fissa un appuntamento

Richiedi informazioni

Clicca su Leggi per aprire l'informativa
* Questi campi sono obbligatori

Calcola il tuo mutuo

Semplice e senza impegno
Anticipo

( % )
Mutuo

( % )

pochi semplici passi

inserisci i tuoi dati
Questionario completato
Grazie per aver richiesto un appuntamento senza impegno con un nostro Consulente del Credito e Assicurativo.

Hai inserito correttamente tutti i dati necessari e a breve riceverai una e-mail con un link da convalidare per inviare i tuoi dati.
Affiliato
Studio Capaci Sas
Via Kennedy, 104 90040 Capaci (PA)

Il nostro staff


  • Orsolina Giosue
    Coordinatrice

  • Roberto Somellini
    Affiliato

  • Anna Somellini
    Coordinatrice
Via Kennedy, 104 90040 Capaci (PA)
Zona: Capaci-Isola delle Femmine-Torretta
Mostra su mappa
Orari: lunedì-venerdì 9,00 13,00- 15,00 19,00 sabato 9,00 13,00
Affiliato
Studio Capaci Sas
Via Kennedy, 104 90040 Capaci (PA)

2026 Tecnocasa Franchising S.p.A. - P. IVA 08365160152 - Via Monte Bianco 60/A 20089 Rozzano (MI). Ogni agenzia ha un proprio titolare ed è autonoma. Privacy policy | Policy utilizzo | Cookie policy